menu
½Ã°ø½ÇÀû
Portfolio
½Ã°ø½ÇÀû
»ç¶÷°ú »ç¶÷À» Áß½ÉÀ¸·Î »õ·Î¿î ³»ÀÏÀ» ´õ Å©°Ô ¸¸µé¾î °©´Ï´Ù.
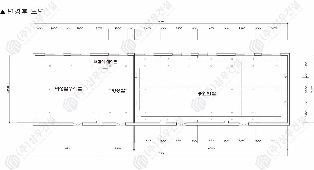
Á¦¸ñ [ȸÀÇ½Ç Interior Design] ±ººÎ´ë ÁßȸÀÇ½Ç / ¹æ¼Û½Ç / ¿©¼ºÇʼö½Ã¼³ Interior Design






°æ±âµµ ÀÌõ½Ã ±ººÎ´ë ÁßȸÀÇ½Ç / ¹æ¼Û½Ç / ¿©¼ºÇʼö½Ã¼³ Interior Design


À§Ä¡ : °æ±âµµ ÀÌõ½Ã ´ëÆ÷µ¿  /  °ø»ç ±â°£ : 35ÀÏ









          ¢Ã3D µðÀÚÀÎ




           ¢ÃÁßȸÀÇ½Ç Åõ½Ãµµ




           ¢ÃÇöÀå»çÁø



           ¢ÃÁذø»çÁø